Almkerk: Hart van Almkerk
Almkerk krijgt een nieuwe multifunctionele accommodatie. Een plek om samen te komen, te doen en te ontwikkelen. Een plek voor kinderen om te leren, spelen en groeien. Waar twee scholen en diverse andere voorzieningen passende huisvesting vinden. Een plek voor jong en oud om met elkaar in contact te komen. Een plek om samen te sporten. Met ruimte voor allerlei vormen van vrijetijdsbesteding. Een plek om fijn te werken én samen te werken. Een plek voor heel Almkerk. Die in verbinding staat met de natuur van onze regio. Het Hart van Almkerk.
Een nieuwe accommodatie in Almkerk
De accommodatie biedt nieuwe mogelijkheden voor Almkerk. De accommodatie gaat de functie en locatie van Het Verlaat overnemen én vernieuwen. Een gebouw dat centraal komt in het dorp, met een hedendaagse uitstraling die past bij de omgeving. Moderne en veelzijdige voorzieningen die beschikbaar zijn voor iedereen. Voor ouders en kinderen. Voor jong en voor oud. Voor sporters en andere liefhebbers. Voor inwoners en de omgeving. Iedereen is welkom om te ontmoeten, te ervaren en te groeien.
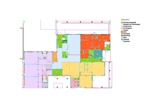
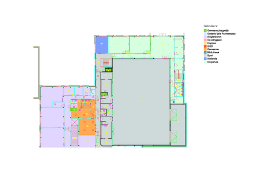
Plattegronden
Klik op de afbeeldingen om de plattegronden te bekijken.
Samenkomen en samenwerken
In dit moderne gebouw gaan diverse organisaties zich huisvesten, namelijk: Bibliotheek CultuurPunt Altena, CNS d’Uylenborch, een consultatiebureau van GGD West-Brabant, HOPPAS Kinderopvang, Logopediepraktijk Mars, Psychologenpraktijk Addenda GGZ & Jeugdhulp en Talentenschool de Almgaard. Meerdere functies voor kinderen komen bijeen en werken samen. Daarmee staan de belangen van kinderen in Almkerk centraal bij de accommodatie.
Verder krijgt het gebouw nieuwe faciliteiten voor alle inwoners en uiteenlopende verenigingen om elkaar te ontmoeten, samen hun sport te beoefenen of hun passie te delen. Met de functies van modern dorpshuis en sportcentrum kun je dus ook rekenen op ruime mogelijkheden om te ontmoeten, leren, bewegen en ontspannen. En er blijft ruimte voor het organiseren van een feestje of het houden van een vergadering. Allemaal op één plek.
Planning
Begin 2025 is aannemingsbedrijf Tankens gestart met de bouw van Hart van Almkerk. Tibo Veen is de installateur voor het gebouw. De start van de bouw is met de hoofdgebruikers (d’Uylenborch, de Almgaard en Hoppas) feestelijk gevierd. Kinderen hebben samen met wethouder Wendy van Ooijen een tijdcapsule in de grond geplaatst die na 25 jaar wordt opgegraven. In de tijdcapsule zitten tekeningen van de kinderen met hoe zij denken dat de school er over 25 jaar uitziet. Daarnaast hebben ze samen de eerste paal geslagen.

Het bouwteam Hart van Almkerk bestaat uit het projectteam van gemeente Altena, aannemer Tankens en installateur Tibo Veen. Regelmatig komt het bouwteam bijeen om de planning van het project door te nemen. Op dit moment lopen de werkzaamheden achter op de oorspronkelijke planning. Het bouwteam zet alles op alles om in te lopen op de planning. Hart van Almkerk is een groot en complex gebouw, waar we een hoge kwaliteit voor nastreven. De nieuwe opleverdatum is in de herfstvakantie van 2026. Dit is de week van 17 oktober 2026.
Mijlpalen
Start bouw
Januari 2025
Hoogste punt
November 2025
Verwachte oplevering
Oktober 2026










